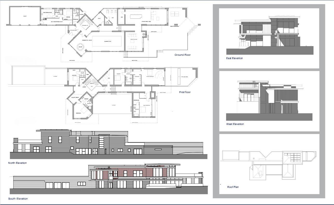
- Being sold with planning permission in place for an impressive 'grand designs' style residence
- Footings already laid
- Once built, the property will boast six bedrooms arranged over 2 storeys
- Unconditional offers sought
- Area For Sale Extends to Approx. 1.13 Acres
- 23.9 miles to Luton Airport
- 0.3 miles to the Polhill Arms
- 4 miles to Bedford Town Centre
- 4.4 miles to Bedford Station
- 0.2 miles to Renhold V.C Primary
Full Description
Taylor Land is delighted to bring to the market this rare building plot located in one of Bedford's most sought after locations. The site is accessed by a private gated driveway and is being sold with planning permission in place for an impressive 'grand designs' style residence. The planning has already been implemented as the footings have been laid. Renhold is a rural village located just 4 miles north of Bedford Town Centre. Local amenities include a village hall, post office/general store and The Polhill Arms Pub, whilst further shopping and recreational facilities are available in Bedford Town Centre.All offers are to be submitted in writing to Taylor Land Limited. Preference will be given to parties that demonstrate they have undertaken full analysis of the site.
Viewing
Please contact us on 01234 302043 if you wish to arrange a viewing appointment for this property, or require further information.
Taylor Made - MK40 endeavour to maintain accurate depictions of properties in Virtual Tours, Floor Plans and descriptions, however, these are intended only as a guide and purchasers must satisfy themselves by personal inspection.
Viewing
Please contact us on 01234 302043 if you wish to arrange a viewing appointment for this property, or require further information.
Taylor Made - MK40 endeavour to maintain accurate depictions of properties in Virtual Tours, Floor Plans and descriptions, however, these are intended only as a guide and purchasers must satisfy themselves by personal inspection.

