Full Description
WINTER 2026 COMPLETIONSituated at the end of a private road, overlooking green space, with a larger than average rear garden, The Earlswood is the ideal large family home.The spacious kitchen, dining, and family area creates a lively hub for everyday living, while the separate lounge and dining room provide perfect spaces for entertaining and more formal dining occasions. The first floor comprises of the main bedroom with an ensuite and built in storage, the second bedroom with an ensuite, a further two double bedrooms and the fifth single bedroom which could also be used as a study.Call Taylor Made today to arrange your viewing appointment!
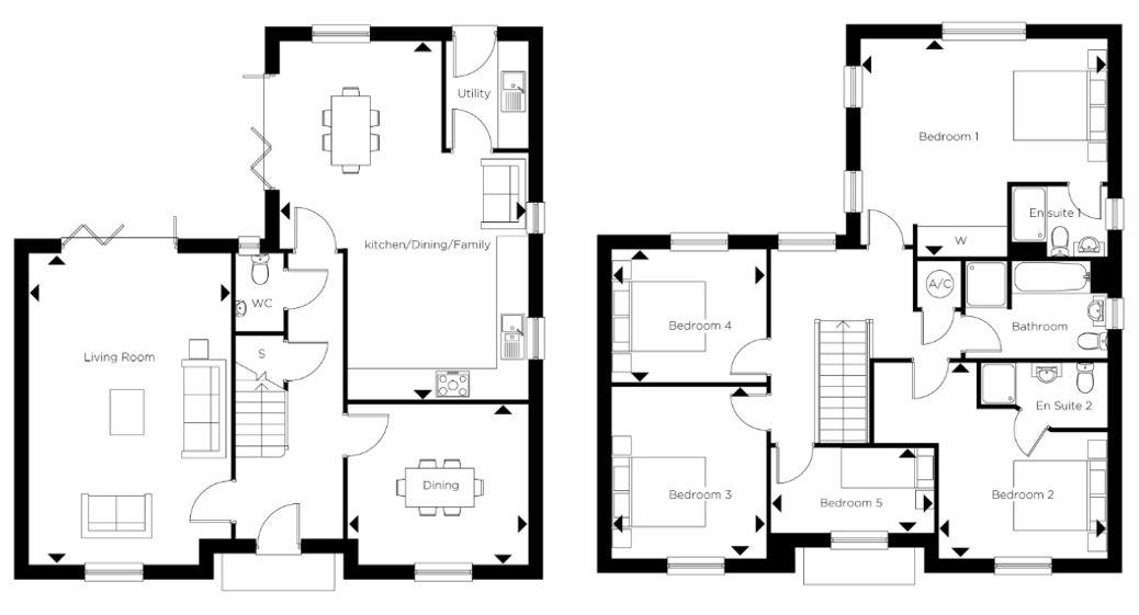
Entrance Hall
Living Room (6.68m x 4.34m (21'11 x 14'3))
Dining Room (3.89m x 3.45m (12'9 x 11'4))
Kitchen/Dining/Family Room (7.70m x 5.33m (25'3 x 17'6))
WC
Utility Room
Landing
Bedroom 1 (5.33m x 4.19m (17'6 x 13'9))
Ensuite
Bedroom 2 (3.58m x 4.24m (11'9 x 13'11))
Ensuite
Bedroom 3 (3.71m x 3.35m (12'2 x 11'))
Bedroom 4 (3.35m x 2.90m (11' x 9'6))
Bedroom 5 (3.56m x 1.88m (11'8 x 6'2))
Bathroom
Enclosed Rear Garden
Double garage
Driveway
Viewing
Please contact us on 01234 302043 if you wish to arrange a viewing appointment for this property, or require further information.
Taylor Made - MK40 endeavour to maintain accurate depictions of properties in Virtual Tours, Floor Plans and descriptions, however, these are intended only as a guide and purchasers must satisfy themselves by personal inspection.
Entrance Hall
Living Room (6.68m x 4.34m (21'11 x 14'3))
Dining Room (3.89m x 3.45m (12'9 x 11'4))
Kitchen/Dining/Family Room (7.70m x 5.33m (25'3 x 17'6))
WC
Utility Room
Landing
Bedroom 1 (5.33m x 4.19m (17'6 x 13'9))
Ensuite
Bedroom 2 (3.58m x 4.24m (11'9 x 13'11))
Ensuite
Bedroom 3 (3.71m x 3.35m (12'2 x 11'))
Bedroom 4 (3.35m x 2.90m (11' x 9'6))
Bedroom 5 (3.56m x 1.88m (11'8 x 6'2))
Bathroom
Enclosed Rear Garden
Double garage
Driveway
Viewing
Please contact us on 01234 302043 if you wish to arrange a viewing appointment for this property, or require further information.
Taylor Made - MK40 endeavour to maintain accurate depictions of properties in Virtual Tours, Floor Plans and descriptions, however, these are intended only as a guide and purchasers must satisfy themselves by personal inspection.

