Full Description
WINTER 2025/SPRING 2026 COMPLETIONWith a longer-than-average driveway, single detached garage, and a south-facing rear garden, The Humberstone offers extensive indoor and outdoor living space.The bright and spacious kitchen, dining, and family area is enhanced by a stunning bay window, perfectly blending modern living with traditional housebuilder charm. The first floor boasts a generously sized master bedroom with ensuite, three double bedrooms and the family bathroom.Contact Taylor Made to arrange your viewing appointment!
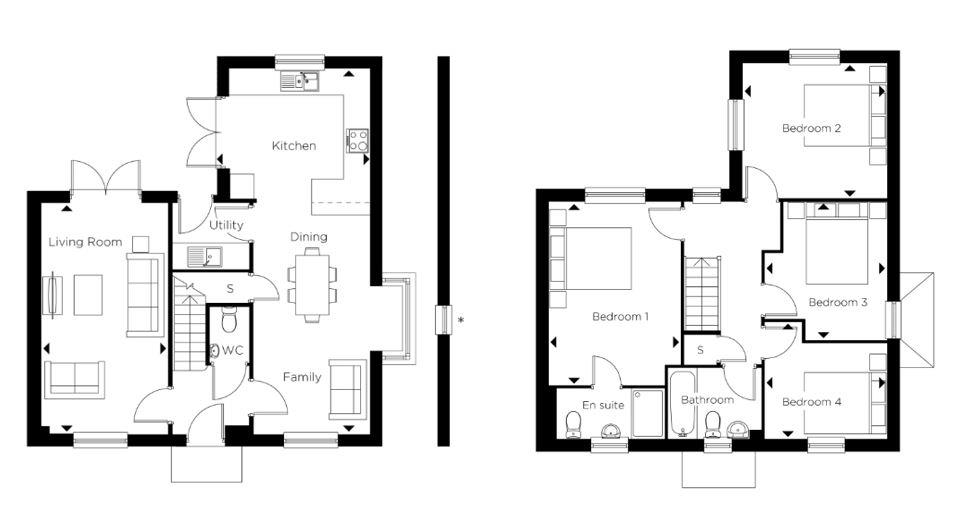
Entrance Hall
Living Room (5.77m x 3.20m (18'11 x 10'6))
Kitchen/Family/Dining Room (9.14m x 2.21m (30' x 7'3))
WC
Utility Room
Landing
Bedroom 1 (4.50m x 3.23m (14'9 x 10'7))
Ensuite
Bedroom 2 (3.53m x 3.28m (11'7 x 10'9))
Bedroom 3 (3.48m xd 3.00m (11'5 xd 9'10))
Bedroom 4 (3.00m x 2.90m (9'10 x 9'6))
Bathroom
Enclosed Rear Garden
Single Garage
Driveway
Viewing
Please contact us on 01234 302043 if you wish to arrange a viewing appointment for this property, or require further information.
Taylor Made - MK40 endeavour to maintain accurate depictions of properties in Virtual Tours, Floor Plans and descriptions, however, these are intended only as a guide and purchasers must satisfy themselves by personal inspection.
Entrance Hall
Living Room (5.77m x 3.20m (18'11 x 10'6))
Kitchen/Family/Dining Room (9.14m x 2.21m (30' x 7'3))
WC
Utility Room
Landing
Bedroom 1 (4.50m x 3.23m (14'9 x 10'7))
Ensuite
Bedroom 2 (3.53m x 3.28m (11'7 x 10'9))
Bedroom 3 (3.48m xd 3.00m (11'5 xd 9'10))
Bedroom 4 (3.00m x 2.90m (9'10 x 9'6))
Bathroom
Enclosed Rear Garden
Single Garage
Driveway
Viewing
Please contact us on 01234 302043 if you wish to arrange a viewing appointment for this property, or require further information.
Taylor Made - MK40 endeavour to maintain accurate depictions of properties in Virtual Tours, Floor Plans and descriptions, however, these are intended only as a guide and purchasers must satisfy themselves by personal inspection.

